[주부 고은희 행복한 집 짓기]<2>정보의 바다에서-설계

  • 입력 2004년 12월 2일 16시 10분


땅을 마련하고 나니 온통 집 생각뿐이었다. 남의 집을 보면 외관만이 아니라 문고리 하나에도 눈길이 갔다. 마음이 커질수록 경비를 빨리 마련하고 싶어졌고 결국 ‘서울의 아파트(그것도 강북에 달랑 하나 있는!)’를 팔아 ‘시골에 집’을 짓기로 했다. 이런 얘기를 꺼내자 주변에선 여러 이유를 들며 모두 말렸다.

그러나 남들이 염려하는 짓을 한두 번 했던가. 평범한 우리 아이들이 학원과 과외는 물론 방문 학습지 한 장을 안 한 것도 그렇고, 작년에는 남편 안식년을 맞아 한창 바쁜 중고교생 아이들은 물론, 잡종견 백구까지 모두 데리고 미국으로 가서 1년을 산 것도 그랬다.

고교평준화 세대인 우리 부부는 다양한 부류의 친구들과 어울려 지내면서 행복은 성적순이 아니라는 것을 절감했다. 그래서 하기 싫은 공부를 억지로 시켜 자식들과 ‘웬수’로 지내지는 말자는 생각을 자연스럽게 하게 됐다.

그리고 올해 8월 미국에서 귀국하면서 계획을 실천으로 옮겼다.

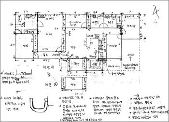
맨 처음 그렸던 설계도. 최종 설계도는 위아래가 바뀔 정도로 크게 달라졌다.

물론 결단을 내렸다고는 해도 남편 직장과 아이들 학교 때문에 강원도로 완전히 이주하는 것은 아직 무리인 것 같았다. 주말과 방학에는 가족이 살고 주중에는 남편과 내가 번갈아 가며 있기로 했다.

우선 설계. 가장 먼저 떠오른 건 건축사인 동생이었다. 예산만 알려주고 맡기면 안될까. 그게 아니었다. 집주인 스스로 자신이 어떤 집을 원하는지 알아야 한다는 것이었다.

어떤 재료로 어떤 형태의 집을 지을 것인지, 소요 경비는 얼마나 될지를 알아본 후에 설계에 대해 이야기하자고 했다. 그러면서 실제 경비는 예산의 1.2배에서 1.5배 이상 지출이 되므로 그만한 예산을 반드시 확보해야 한다고 강조했다. 또 집을 짓다보면 욕심이 자꾸 생기므로 예산 내에서 우선순위에 따라 불필요한 항목을 제거할 수 있도록 서열을 생각하며 계획을 세우라고 했다.

어떤 집을 지을 것인지 결정하기 위해 인터넷에서 검색을 하기 시작했다. 전원주택, 통나무집, 목조주택 등을 검색창에 치자 정보가 쏟아져 나왔다. 회원 가입을 해가며 각 사이트를 샅샅이 훑어 나가다 보니 꼬박 이틀이나 걸렸다.

예산을 짜기 위해 건축비를 알아보는 것은 더 어려웠다. 평당 건축비가 100만원대에서 600만원 이상에 이르기까지 천차만별이었다. 평당 건축비를 계산하는 방법도 모두 달라서 어떤 항목이 포함되는지, 그리고 그것이 어떤 의미인지 알기 어려웠다.

남편이 바라는 대로 전원에서 아파트의 편리함을 누릴 수 있는 집을 짓는다는 것을 목표로 증개축이 쉬운 목조주택을 짓기로 했다. 단층 45평규모로 예산은 평당 300만원. 그 정도면 무리하지 않고 집을 짓고도 약간의 여유가 있을 것 같았다.

동생에게 다시 연락했다. 이번에는 원하는 방의 개수와 크기를 정하고 윤곽을 잡아 대략의 평면도를 그려보라고 한다. 그래서 우선 살고 있는 각 방의 넓이를 쟀다. 미터법으로 잰 방의 크기는 감이 오지 않아 평으로 바꿨다. 그런 후에 방을 축소해 모눈종이에 그려 오린 후 이렇게 저렇게 배치를 해보았다. 그런데 실제로 해보니 생각했던 대로 공간배치가 되지 않았다. 자투리 공간이 너무 많이 생겼다.

다시 인터넷 검색을 했다. 주택의 크기별로 평면도가 1만개 이상 있는 영문 사이트도 있었다. 그런데 미국 집은 너무 넓고 대부분 이층이었으며 우리가 중요하게 생각하는 방위(方位)를 무시한 채 설계가 된 것이 많았다. 국내 사이트에도 주택시공업체의 자체 표준 설계 도면이 있었지만 원하는 종류의 설계도는 찾을 수 없었다.

나는 우리가 노인이 됐을 때 이동하기 쉽고(휠체어도 다닐 수 있어야 한다) 냉난방의 효율이 좋은 단층집을 원했다. 한번도 개인 서재를 가져보지 못한 남편에게 넓고 전망이 좋은 서재를 마련해주고 싶었고 내 서재도 필요했다. 그래서 이번에는 인터넷 대신 도서관과 서점을 뒤졌다.

드디어 우리가 원하는 집의 구조가 그림으로 완성했다. 동생은 우리가 보낸 평면도를 다듬은 설계도 두 장과 자신의 의견을 약간 보태 수정한 설계도 한 장을 그려 보내왔다. 우리는 수정 설계도를 선택했다.

이제 시작이었지만 머릿속에선 이미 우리 집이 완성된 느낌이었다.

고은희 ehsophia@yahoo.co.kr

트렌드뉴스

트렌드뉴스

  • 좋아요
    0
  • 슬퍼요
    0
  • 화나요
    0

댓글 0

지금 뜨는 뉴스