
전국민 고용보험 놓고 경제학자들 ‘찬반 팽팽’…주장 이유는?
여권을 중심으로 거론되고 있는 전 국민 대상 고용보험 확대 방안을 놓고 저명 경제학자들이 온라인 난상토론을 벌였다. 찬반은 팽팽하게 엇갈렸다. 10일 국내외 경제학 교수 32명이 패널로 있는 토론방인 ‘경제토론’에 따르면 최근 고용보험 확대에 대한 설문을 실시한 결과 확대에 동의…
- 2020-06-10
- 좋아요 개
- 코멘트 개

여권을 중심으로 거론되고 있는 전 국민 대상 고용보험 확대 방안을 놓고 저명 경제학자들이 온라인 난상토론을 벌였다. 찬반은 팽팽하게 엇갈렸다. 10일 국내외 경제학 교수 32명이 패널로 있는 토론방인 ‘경제토론’에 따르면 최근 고용보험 확대에 대한 설문을 실시한 결과 확대에 동의…
![[대구 브리핑] 삼성 최채흥, 올곧은병원 5월 MVP](https://dimg.donga.com/a/296/167/95/2/wps/NEWS/IMAGE/2020/06/10/101454817.2.jpg)
삼성 라이온즈 좌완투수 최채흥이 올곧은병원에서 시상하는 5월 월간 MVP로 선정됐다. 시상식은 10일 대구 키움 히어로즈전에 앞서 진행해으며, 우동화 올곧은병원 원장이 시상자로 나섰다. 최채흥은 소정의 상품권을 받았다. 한편 최채흥은 5월 5경기에 등판해 3승1패, 평균자책점 3.…

2020년 세계 각국의 평균 세계평화지수가 0.34% 하락한 것으로 호주 경제평화연구소(Institute for Economics and Peace)의 ‘세계 평화지수 2020’(The Global Peace Index 2020)에서 나타났다. 세계 평화 수준이 악화된 것은 지난 1…

서울 송파구 잠실동 롯데월드 어드벤처가 신종 코로나바이러스 감염증(코로나19) 우려에서 완벽하게 벗어났다. 10일 롯데월드에 따르면, 앞서 5일 이곳을 방문한 서울 중랑구 원묵고 3학년 A양이 7일 코로나19 확진을 받으면서 롯데월드는 7~8일 영업을 중단하고, 소독과 방역을 진…

현재 널리 쓰이고 있는 와이파이 규격은 802.11 AC로 불리는 와이파이 5다. 와이파이 5 공유기의 특징은 공유기 신호가 2.4GHz와 5GHz로 나뉜다는 점인데, 이는 주파수 대역에 따라 최대 속도와 도달 범위의 성격이 달라서다. 2.4GHz는 최대 속도가 느린 대신 도달 범위가…

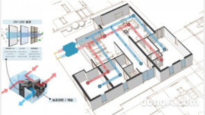
대림산업은 업계 최초로 안티 바이러스 환기시스템을 개발해 특허를 출원했다고 10일 밝혔다. 대림산업에 따르면 이 시스템은 공기청정형 환기시스템에 자외선 발광다이오드(UV LED) 광촉매 모듈을 탑재해 바이러스를 제거한다. UV LED는 인체와 환경에 미치는 부작용은 적은 대신 살균…

동아제약은 지난 9일 문화예술 가치 확산을 위해 ‘문화예술봉사단메리’와 후원 업무협약을 체결했다고 10일 밝혔다. 협약식은 서울 동대문구 용두동 소재 동아제약 본사에서 열렸다. 최호진 동아제약 사장과 박주영 문화예술봉사단메리 이사장, 이충관 한국메세나협회 사무처장 등 주요 관계자들이 …

그룹 ‘걸스데이’ 출신 혜리가 지난 9일 27번째 생일을 축하받는 모습을 공개했다. 혜리는 이날 자신의 인스타그램에 축하 파티를 연 사진을 올렸다. 그는 풍선과 소품, 꽃다발과 케이크 속 파티 현장에서 밝은 미소를 짓고 있다. 그러면서 “혜리데이. 27살의 혜리 역시 정말 행복하다…

경기 수원시 영통구 매탄동 삼성전자 수원사업장의 한 연구동에서 청소용역업체 여직원이 신종 코로나바이러스 감염증(코로나19) 확진판정을 받아 삼성전자가 해당 연구동 건물을 폐쇄 조치했다. 또 이 연구동에서 일하는 직원 등 1200여명은 재택근무에 들어갔다. 10일 삼성전자와 수원시에 …

경남 창녕에서 부모에게 학대를 당한 A 양(9)이 경찰과 아동보호전문기관 조사에서 “부모가 집 밖으로 나가지 못하게 목줄을 채웠고, 설거지나 집안일을 할 때 풀어줬다”는 취지의 진술을 한 것으로 확인됐다. 10일 경남지방경찰청과 창녕경찰서에 따르면, 경찰은 지난 5일 학대 피해를 호…

“공짜망 사용에 접속 장애는 모르쇠로…” 글로벌 온라인동영상서비스(OTT) 넷플릭스가 또다시 접속 장애를 일으켰다. 지난달 25일 문제됐던 오류는 단순 접속 장애라면, 이번에는 애플리케이션이 문제를 일으켰다. 사용자가 앱을 실행한 후 스크롤하면 강제종료되는 오류다. 10일 뉴스1 취재…

‘이낙연 대세론’으로 흐르는 듯했던 8·29 더불어민주당 전당대회가 당권과 대권 분리 이슈로 무게추가 옮겨가고 있다. 가장 난감해진 당 대표 후보는 유력 대권주자인 이낙연 의원이다. ‘대통령의 시간’이어야 할 현시점에 이낙연 의원을 중심으로 한 조기 대선 레이스가 펼쳐지는 것이 바람직…

벤틀리는 브랜드 첫 스포츠유틸리티차량(SUV) ‘벤테이가’가 세계 시장에서 누적 판매량 2만대를 돌파했다고 10일 밝혔다. 지난 2016년 첫 인도 이후 4년 만에 거둔 성적이다. 럭셔리 SUV 수요에 대한 발 빠른 대응에 힘입어 경쟁사보다 눈에 띄는 실적을 기록한 것으로 브랜드 전체…

경제협력개발기구(OECD)가 신종 코로나바이러스 감염증(코로나19) 확산세가 지속되면서 우리 경제의 성장률 전망치를 하향 조정하며 -1.2%까지 낮춰 잡았다. 코로나19 확산세가 지속되는 상황을 반영한 것으로 연말에 2차 충격이 가해질 경우 추가 하락이 예상된다고 전했다. 10일…

세계보건기구(WHO)가 신종 코로나바이러스 감염증(코로나19)와 관련해 “무증상 감염자의 2차 전파 가능성이 거의 없다”는 발언을 하루 만에 철회했다. BBC 등에 따르면 마리아 판케르크호버 WHO 신종질병팀장은 9일(현지 시간) 무증상 환자의 2차 전염에 대해 “우리는 아직 정…

2019년 4월 첫 출시 후 국내서만 3억 병 이상 판매된 ‘진로이즈백’이 해외로 수출된다. 진로이즈백 해외 판매는 이번이 처음이다. 하이트진로는 10일 일본을 시작으로 미국 캐나다 중국 영국 등 7개국으로 진로이즈백을 수출한다고 밝혔다. 초도물량은 130만 병으로 올 2월 해외 수…

서울시교육청이 10일 사립 대원·영훈국제중학교의 재지정 취소를 결정한 것은 이들 2개교의 존폐에 그치는 문제가 아니다. 교육계에서는 조희연 서울시교육감이 국제중을 극소수 부유층을 위한 사실상의 ‘특권교육’으로 규정하면서 꺼내든 ‘통합교육’ 화두에 주목해야 한다는 지적이 나온다.문재인 …

대북 전단(삐라)를 살포해 정부로부터 고발과 법인 취소를 당할 예정인 자유북한운동연합의 박상학 대표가 10일 정부를 맹비난했다. 박 대표는 이날 뉴스1과 통화에서 “통일부보다 차라리 조선노동당 통일전선부라고 부르는 것이 낫다”면서 “우리나라 통일부는 ‘역적부’이며, 북한의 ‘노예부’…
![[청계천 옆 사진관]文대통령, ‘현직 대통령 처음’ 남영동 대공분실 찾아 박종철 열사 헌화](https://dimg.donga.com/a/296/167/95/2/wps/NEWS/IMAGE/2020/06/10/101447323.3.jpg)
문재인 대통령이 10일 서울 용산구 민주인권기념관 예정지(옛 치안본부 남영동 대공분실)에서 열린 제33주년 6·10민주항쟁 기념식에 참석해 민주주의 발전에 기여한 유공자들의 공로를 치하했다. 정부가 6·10 기념식에서 합동으로 포장이 아닌 훈장을 서훈한 것은 헌정 사상 처음이다. 문…

목포 부동산 투기 혐의 등으로 기소된 손혜원 열린민주당 의원에 대해 검찰이 징역 4년을 구형했다. 검찰은 10일 서울남부지법 형사4단독 박찬우 판사 심리로 열린 손 의원의 부패방지및국민권익위원회의설치와운영에 관한 법률(부패방지법) 위반, 부동산실권리자명의등기에 관한 법률 위반 혐의 …