
패브릭소파 에싸, 유기견 행복 나눔 캠페인 실시
반려견과 함께 사용할 수 있는 소파도 출시 국내 소파 제조 1위 업체인 자코모의 패밀리브랜드 에싸(ESSA)가 유기견 행복 나눔 캠페인을 펼친다. 이번 캠페인은 사회문제로 대두되고 있는 유기견에 대한 사회적 관심을 유도하고 유기견 사료 증정 미션 캠페인 등 반려인들이 직접 참…
- 2020-06-30
- 좋아요 개
- 코멘트 개

반려견과 함께 사용할 수 있는 소파도 출시 국내 소파 제조 1위 업체인 자코모의 패밀리브랜드 에싸(ESSA)가 유기견 행복 나눔 캠페인을 펼친다. 이번 캠페인은 사회문제로 대두되고 있는 유기견에 대한 사회적 관심을 유도하고 유기견 사료 증정 미션 캠페인 등 반려인들이 직접 참…

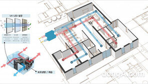
최근 코로나19 바이러스 재확산으로 보건 안전에 대한 경각심이 최고조에 이르고 있다. 건설업계도 입주민들의 안전을 지킬 수 있는 기술 개발에 관심이 높다. 대림산업은 깨끗하고 안전한 주거환경에 대한 고객의 니즈를 사전에 파악해 선제적으로 환기시스템 5개년 중장기 로드맵을 계획했고, 안…
![[동아플래시100]“사회주의와 레닌 알려면 동아일보 1면을 보세요”](https://dimg.donga.com/a/296/167/95/2/wps/NEWS/IMAGE/2020/06/30/101745371.1.jpg)
플래시백1921년 6월 3일자 동아일보 1면에 ‘니콜라이 레닌은 어떠한 사람인가’ 1회가 실립니다. 민족 신문인 동아일보에 말이죠. 그것도 무려 8월 31일자까지 매번 1면에 장기 연재합니다. 조선에 공개적으로 소개된 최초의 레닌 전기였죠. 당시 유행하던 사회주의를 제대로 알리려는 의…

대림산업이 내달 경기 평택시 용이동 641번지 일대 ‘e편한세상 비전 센터포레’ 분양에 나선다. 용죽도시개발 사업지구에 마지막으로 공급되는 신축 아파트다. 올해 개소 예정인 스타필드 안성의 반경 2km 내에 위치한 스타필드 생활권 단지다. e편한세상 비전 센터포레는 지하 1층~지상 …

법원 경매담당 공무원을 잘 알고 있다고 속여 경매관련 투자를 미끼로 한 가족으로부터 총 18억원을 뜯어낸 60대 여성에게 실형이 선고됐다. 울산지법 제11형사부(재판장 박주영 부장판사)는 특정경제범죄가중처벌등에관한법률위반(사기) 등의 혐의로 기소된 A(68·여)씨에게 징역 3년을 선…

태영호 미래통합당 의원은 “정부가 나서 김정은 북한 국무위원장과 여동생 김여정 부부장을 고발하라”며 그렇지 않을 경우 “김정은 남매의 갑질은 더 심해질 것이다”고 주장했다. 탈북한 북한 외교관 출신 중 최고위 인사였던 태 의원은 30일 입장문을 통해 “김정은 남매가 우리 국민세금 1…

# 직장인 A씨(33세)는 최근 점심을 해결하기 위해 편의점에 들렀다가 소위 ‘빵 터지고’ 말았다. 그가 고른 메뉴는 컵라면과 삼각김밥이었다. 전자레인지에 삼각김밥을 돌리고 컵라면에 물을 부으려다 ‘센스 만점’ 문구를 발견했다. 컵라면 바닥에 ‘의료진 덕분에♡’라는 문구가 인쇄돼 있었…

세종대는 김대종 경영학부 교수가 “온라인 쇼핑 산업이 코로나19로 인하여 매년 20% 이상 높은 성장을 하고 있다. 한국은 K-방역과 바이오산업, 언택트산업, 그리고 인공지능 등 4차 산업혁명이라는 거대한 세상의 변화 물결을 주도해야 한다”는 주제로 논문을 발표했다고 30일 밝혔다. …

사회관계망서비스(SNS)를 통한 쇼핑 피해신고가 지난 1년간 2002건으로 조사됐다. 피해금액은 2억3000만원에 달한다. 피해 유형의 대부분이 ‘주문취소·반품 및 환불거부’였고 ‘판매자 연락불가 및 운영중단’ 건도 10%로 나타났다. 서울시 전자상거래센터는 지난해 6월부터 올해…

서울시 사회관계망서비스(SNS)마켓 이용자 중 33%가 피해경험이 있다고 조사됐다. 서울시 전자상거래센터는 소비자 2명 중 1명은 SNS 마켓을 이용한 경험이 있고, 쇼핑하면서 피해를 입었다고 응답한 사람은 33%나 된다고 30일 밝혔다. 서울시 전자상거래센터 조사에 따르면 신고된…

여성듀오 다비치 멤버 강민경의 ‘쇼핑몰 가격 논란’이 SNS를 달구고 있다. 강민경은 최근 ‘아비에무아’란 이름의 쇼핑몰을 열었다. ‘아비에무아’에서 판매하는 일명 ‘곱창 밴드’ 가격이 논란이 된 것. ‘곱창 밴드’는 머리끈의 한 종류로 곱창 모양이라 이같은 이름으로 불린다. 시…
도널드 트럼프 미국 대통령이 여론조사 수치가 반등하지 않는다면 대선 레이스에서 중도 하차할 수 있다는 가능성이 공화당 선거 참모들 사이에서 처음으로 제기되고 있다고 폭스뉴스가 28일(현지시간) 보도했다. 폭스뉴스의 보도는 모든 여론 조사를 종합해 평균 지지율을 산출하는 정치 분석 전문…

화가 김태연의 개인전 ‘늙지 않는 미래’가 서울 종로구 삼청동 공근혜 갤러리에서 오는 7월 6일까지 열린다. 늙지 않는 미래에 대한 긍정적 관점과 확장되는 생명의 관점에 대해 생각해볼 수 있는 김 작가의 다양한 회화 작업을 접할 수 있다. 전시회 관계자는 “인간에게 시간이 흐르고…

정세균 국무총리가 30일 국회에 3차 추가경정예산안의 조속한 처리를 당부하면서 “경제 회복과 도약의 시기를 앞당기는 데 힘을 보태주시길 간곡히 부탁드린다”고 밝혔다. 정 총리는 이날 정부서울청사에서 국무회의를 주재하고 “모든 경제주체가 코로나19 감염 극복을 위해 뜻을 모으고 있고,…

미국에서 신종 코로나바이러스 감염증(코로나19) 사망자의 43%가 요양원 및 장기요양시설과 관련이 있는 것으로 나타났다. 뉴욕타임스(NYT)는 자사 데이터베이스(DB)를 분석한 결과 미국 내 요양원과 장기요양시설에서 최소 5만4000명의 입주자와 직원이 코로나19로 숨진 것으로 집…

지난해 한 남성(43)이 자신의 딸을 성폭행한 뒤 온라인에 해당 영상을 공유한 사건으로 드러난 독일의 온라인 소아성애자 네트워트에 3만명이 연계된 것으로 드러났다. 독일 일간 쥐트도이체차이퉁(SZ), 영국 BBC는 29일(현지시간) 독일 당국이 온라인에서 아동을 상대로 한 성착취 …

현대·기아차 상용차 개발 업무 총괄 수소전기 트럭·버스 연구개발 가속 현대·기아자동차가 다임러트럭의 전동화 부문 기술개발 총괄 출신 마틴 자일링어를 연구개발본부 상용개발담당 부사장으로 임명한다고 30일 밝혔다. 7월 1일부로 현대차그룹에 합류하는 마틴 자일링어 부사장은 현대·기아…


빙그레가 꽃게랑 브랜드를 의류 및 패션 아이템으로 재해석한 신규 캠페인을 선보인다. 꽃게랑 스낵의 모양을 로고화하여 패션 브랜드 ‘꼬뜨 게랑’을 런칭한 것. 패션 아이콘인 가수 지코를 모델로 기용하고, 꽃게랑 로고를 사용한 티셔츠 2종, 반팔 셔츠, 선글라스, 미니백 2종, 로브, 마…

참여정부 시절 청와대 홍보수석을 지낸 조기숙 이화여대 국제대학원 교수가 문재인 정부의 부동산 정책을 겨냥해 “국민이 실험대상도 아니고”라며 다시 쓴소리를 했다. 조기숙 교수는 29일 밤 페이스북에 올린 글에서 “국민이 실험대상도 아니고 대책을 내놔도 먹히지 않으면 다양한 의견을 …